Opis

Sprzedane

Na sprzedaż nowe mieszkanie w stanie deweloperskim dużą loggią i z piwnicą. Ogrzewanie miejskie. Parking przed budynkiem. W pobliżu przystanki komunikacji miejskiej, przedszkole i szkoła podstawowa, markety, uczelnia wyższa, ośrodki zdrowia, ścieżki rowerowe i spacerowe, park miejski.
BLOK LOTNICZA 4
ESC-MS-95447
3
3
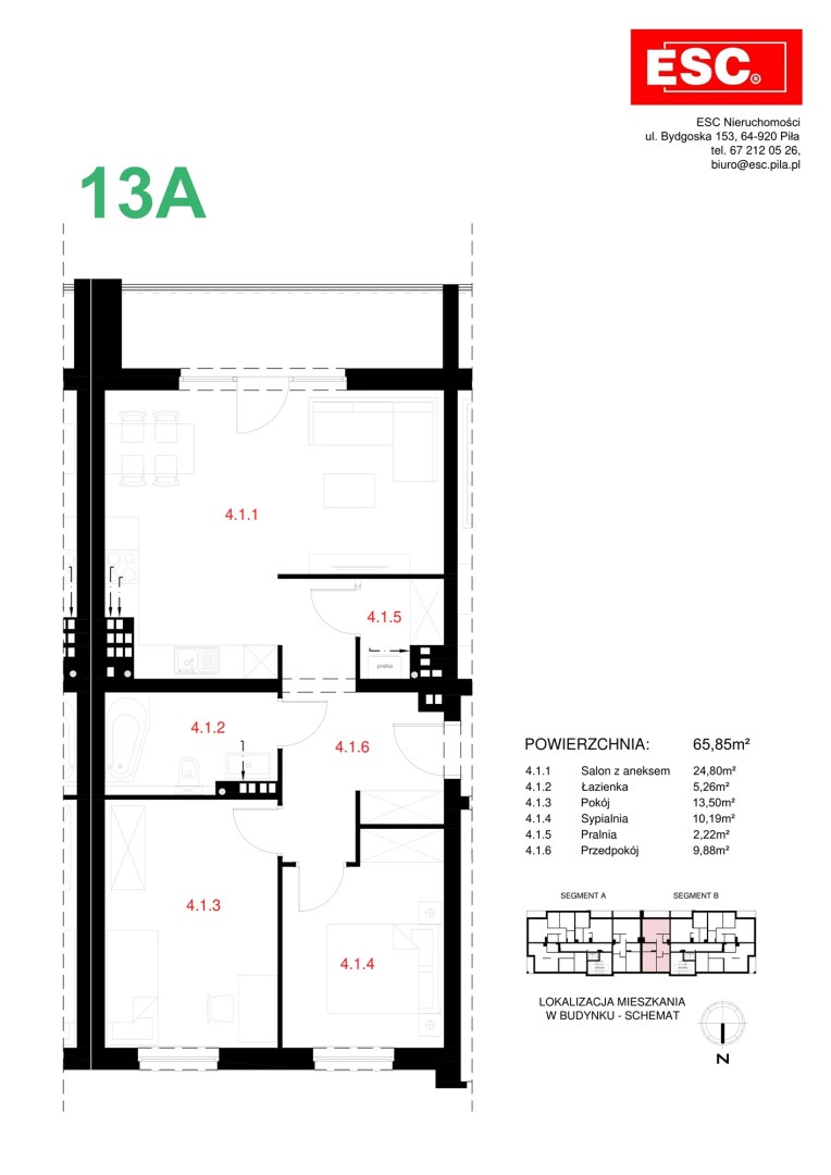
65,85 m²
blok
4
deweloperski
okna trzyszybowe
jest
2025
ciepła - miejska
miejskie
tak

Kuchnia

Aneks m2

Łazienka

1

Ta strona wykorzystuje pliki cookies w celach statystycznych oraz w celu dotosowania naszych serwisów do indywidualnych potrzeb klientów. Zmiany ustawień dotyczących plików cookie można dokonać w dowolnej chwili modyfikując ustawienia przeglądarki. Korzystanie z tej strony bez zmian ustawień dotyczących cookies oznacza, że będą one zapisane w pamięci urządzenia.